- Design Services Preliminary concept designs for discussion
- Preparation of detailed layout plans, sections and details
- Pre-Planning Application
- Full Planning Application
- Prior Approval Application
- Advice on Permitted Development
- Applications for a Certificate of Lawful Development
- Listed Building Applications
- Preparation of Building Regulations drawings and details
- Extensions
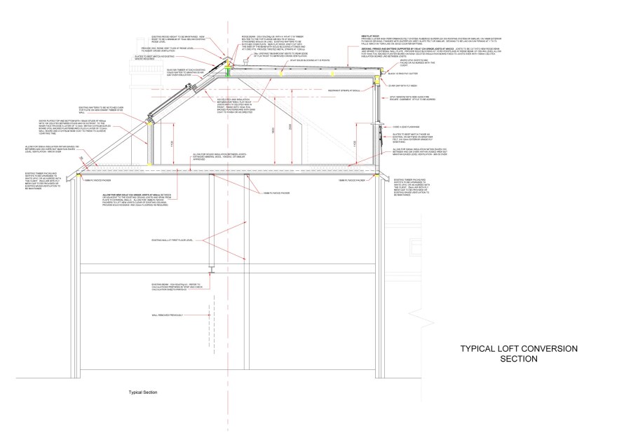
- Loft conversion





